未来索引
开启左侧

三分钟了解全屋智能服务流程

[复制链接]
智汇云智能家居 发表于 2022-8-22 10:12:09 | 显示全部楼层 |阅读模式 打印 上一主题 下一主题
好多人想给家里安装一套智能家居系统,但往往因为不够了解,没能及时地对接全屋智能服务商,导致后期安装使用过程中出现种种问题。那究竟全屋智能的服务流程都有哪些呢?每个环节又有哪些细节需要注意呢?


1、方案设计

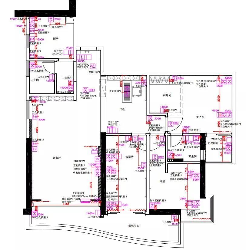
每个人对智能生活的想象、追求都是不同的,因此对智能家居的实际需求也就会有区别。

因此,全屋智能服务商在设计全屋智能方案前,会充分沟通用户需求,并根据用户的房屋开关图、灯具图来出具方案清单设备点位图,同时对每个区域每个产品可实现的功能和场景加以说明。

1.jpg
设备点位图

2、现场交底

因为全屋智能设备与传统设备不同,加之目前各品牌全屋智能设备规格、要求不完全统一,所以在现场交底时(在水电改造前),由工程师与装修人员现场沟通对接。

2.jpg

根据方案清单,对每个空间的每个产品需明确产品安装位置、安装方式、产品安装尺寸要求、要预留线路类型和数量规格等施工要求。

3.png
方案清单

并且现场交底时,用户和装修方负责工长都必须同时在场,根据方案空间区域依次确认后分别在方案清单上签字。

3、现场复核

完成水电改造后,要在墙面和天花板封板前进行现场复核环节。需要用户、装修方负责工长和工程师三方到场。

现场复核环节主要是根据上一次(现场交底时)签字的交底方案中每个产品交底的标准进行二次确认,确认设备安装位置、安装方式、预留条件,布线要求,是否按照标准预留。

4.jpg

注意:如果未达到标准,或者有遗漏项需要明确的告知用户,并做好记录,同时需要做二次交底确认。

4、产品安装调试

安装前要确认现场装修是否满足了智能设备进场安装的条件,如灯具是否安装点亮,各种设备是否正常运行。

5.png

产品安装完成后需预约用户到现场,工程师根据方案清单中的方案空间场景说明,对整个智能家居系统进行上电检测,执行解决方案中的设计要求。

5、项目验收

施工完成后,由工程师携带方案清单(内含方案空间场景说明),预约用户到现场,和用户一起确认:

  • 每个产品是否按标准安装功能是否正常,设备是否正确执行
  • 根据方案中的空间场景说明进行逐项控制确认场景执行结果;
  • 帮助用户下载“智能家居管家APP”并且完成帐号注册和登入;
  • 教会用户使用“智能家居管家APP”控制每个产品和对每个硬件产品进行实际控制;
  • 教会用户编辑产品名称、场景模式、定时设置
  • 教会用户对安防系统进行撤布防。

最后,用户进行现场验收的签字确认。

6、售后维护

智汇云安排专业客服人员即时在线解答问题,提供远程使用指导、故障问题排查、还可通过视频指导用户远程排除故障等服务。

全国招商热线0754-88699869,欢迎咨询加盟
高级模式
您需要登录后才可以回帖 登录 | 立即注册

本版积分规则

发布主题
推荐阅读 更多
阅读排行 更多
广告位
!jz_fbzt! !jz_sgzt! !jz_xgzt! 快速回复 !jz_sctz! !jz_fhlb! 搜索

智能技术共享平台 - 未来论

关注服务号

进入小程序

全国服务中心:

运维中心:天津

未来之家:天津 青岛 济南 郑州 石家庄

                商务邮箱:xy@mywll.com

Copyright © 2012-2021 未来派 未来论 (津ICP备16000236号-5)