全国首家智能家居综合性服务平台,样板间体验产品继续火热招募中!
该平台每年将培训约4000名智能家居设计工程师及装饰智能设计师,并吸引数万智能家居爱好者、终端客户、开发者、媒体等前来交流体验。 智能工坊有你更加精彩!目前已有30几个国内外品牌报名了。 欢迎大家提供智能家居系统各类产品:智能照明系统、中央控制主机、电器控制系统、家庭背景音乐、家庭影院系统、对讲系统、家居布线系统、暖通空调系统、自动抄表、镜面电视、智能小家电、空气净化器、净水机、机器人、各类智能单品、可穿戴产品、智能电视、盒子、智能插座、智能开关、智能猫眼、指纹锁、智能音响等全宅智能、简智能、微智能、轻智能系统产品……
另平台提供约20块实物展示板的空间,尺寸150CM*90CM,欢迎各厂家联络智坊服务平台,展板展示内容将列入智能家居综合培训课教案。
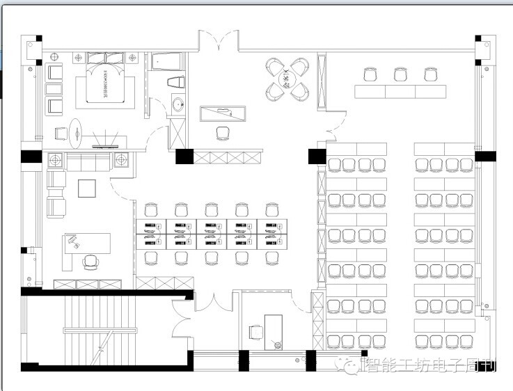
智坊综合服务平台提供:智能家居定制安装设计工程师培训、智能家居中控及第三方产品联合培训、厂家专场培训、厂家新品发布会、学术交流、研发对接、产品展示、系统实训、营销培训、方案融合、样板房案例集、杂志网络宣传、众筹创意等个性化定制服务。 杭州智坊综合服务平台(一期)平面图草案
老树智坊智能家居综合性服务平台初步设计 | 序号 | 区域/系统点位 | 监控系统 | 无线报警系统 | 有线报警系统 | 无线网络覆盖点 | 电话网络 | 插座 | 电视 | 可视对讲系统 | 门禁系统 | 总线灯控 | 无线灯控 | 窗帘控制 | 窗帘电机 | 触摸屏 | 背景音乐 | 视频矩阵 | 空调地暖 | 新风系统 | 水处理系统 | 环境控制系统 | 门窗管理系统 | AV中控系统 | 影音
系统 | 会议系统 | 客控系统 | 小家电 | 节能灯具 | 智能鱼缸 | 智能马桶 | 舞台音响 | 喷雾系统 | 太阳能系统 | 老人看护 | 机房系统 | 1 | 门厅 | 1 | 1 | 1 | | | | | 1 | 1 | 1 | 1 | | | 1 | | | | | | | | | | | | | 1 | 1 | | | 1 | | | | | 2 | 前台 | 1 | | | 1 | 1 | 2 | | | 1 | 3 | 3 | | | | 1 | | | | | 1 | | | | | | | 1 | | | | | | | | | 3 | LOGO墙 | | | | | | | | | | 2 | 2 | | | | | | | | | | | | | | | 1 | 1 | | | | 2 | | | | | 4 | 多功能厅 | 4 | 3 | 3 | 2 | 13 | 13 | 1 | | 1 | 10 | 10 | 4 | 4 | 1 | 1 | 1 | 2 | 1 | | 2 | 4 | 1 | 1 | 1 | | | 1 | | | 1 | 11 | | | 1 | 5 | 员工办公室 | 2 | | | 1 | 10 | 10 | | 1 | | 5 | 5 | | | | 1 | | 1 | 1 | | 1 | | | | | | | 1 | | | | 4 | | | | | 6 | 财务室 | 1 | 1 | 1 | 1 | 2 | 2 | | | 1 | 1 | 1 | 1 | 1 | | 1 | | 1 | | | 1 | 1 | | | | | | 1 | | | | | | | | | 7 | 门厅接待区 | | | | | | 1 | 1 | | | 3 | 3 | | | | | 1 | | | | | | | | | | | 1 | | | | | | | | | 8 | 16个90*150广告画 | | | | | 16 | 16 | | | | 21 | 21 | | | | | | | | | | | | | | | | 1 | | | | | | | | | 9 | 董事长办公室 | | 1 | 1 | 1 | 2 | 2 | 1 | 1 | 1 | 3 | 3 | 1 | 1 | | 1 | 1 | 1 | 1 | | 1 | 1 | | | | | | 1 | | | | 3 | | | | | 10 | 体验区 | | 1 | 1 | 1 | 1 | 2 | 1 | | 1 | 3 | 3 | 1 | 1 | 1 | 1 | 1 | 1 | 1 | | 1 | 1 | | | | 1 | | 1 | | | | | | 1 | | | 11 | 客卫 | | | | | | | 1 | 1 | | 1 | 1 | | | | | | | | 1 | | | | | | | | 1 | | 1 | | | 1 | | | 12 | 小计 | 9 | 7 | 7 | 7 | 45 | 48 | 5 | 4 | 6 | 53 | 53 | 7 | 7 | 3 | 6 | 4 | 6 | 4 | 1 | 7 | 7 | 1 | 1 | 1 | 1 | 1 | 11 | 1 | 1 | 1 | 21 | 1 | 1 | |
2、 | 老树智坊智能家居综合性服务平台初步设计功能要求简述 | 1 | 监控系统 | 实现无线监控、有线监控的融合,能支持链接到中控系统内,通过中控系统APP查看监控视频画面,联动老人看护功能,支持双向通话。 | 2 | 报警系统 | 实现无线、有线相并存的方案,确保有线、无线相结合的报警系统,支持与中控系统整合的接口,可与中控系统对接,报警类型有:防盗、烟雾、求助、玻璃破损、溢水(联动水阀)、煤气(联动煤气阀)、门磁、联动老人看护 | 3 | 无线网络覆盖 | 要求吸顶式或墙装式无线AP网络系统,传输带宽标准建议采用企业级标准, | 4 | 电话网络
电视插座 | 要求外观精美,最好参照酒店面板风格,做成联体效果 | 5 | 可视对讲系统 | 支持较全面的可视对讲系统,可视对讲主机可扩展出可视对讲分机、浴室可视对讲机、厨房可视对讲机等,并把对讲门铃图像传递到中控系统,显示到电视机上 | 6 | 门禁系统 | 根据点位批注要求,提供大门口处人脸识别门锁,可与智能系统联动,会议室大门智能密码锁,可与灯控、窗控联动使用,财务室、董事长大门采取指纹密码锁,
此部分不与智能联动,酒店采取专用指纹锁,前台设置考勤机,便于员工管理。 | 7 | 灯光、窗帘智能系统 | 采取总线、无线两种智能控制系统,可分区域设计,可独立控制,也可支持连接到中控系统统一控制,需要设置感应功能,通过感应方式起到场景变化。 | 8 | 触摸屏 | 大门口采取主流高端、大气、上档次的嵌入式触摸屏,可与中控系统无缝对讲,会议室采取IPAD墙装可移动触摸屏,支持多个软件安装并演示各分系统的控制,客房采取客控专用触摸屏 | 9 | 背景音乐系统 | 支持在线音乐、蓝牙远程播放手机歌曲,支持各房间音源分享,支持与中控系统接入并统一控制,支持硬盘存歌。 | 10 | 视频矩阵系统 | 支持4路高清/模拟/VGA输入,8路高清影视频的输出,可与中控系统联动控制 | 11 | 空调地暖系统 | 会议室放置两台3P吸顶式的空调,员工办公室、前台采取两台3P吸顶式的空调,设置三个出风口,财务室、董事长办公室、客房各采取壁挂式2P独立空调 | 12 | 新风系统 | 控制会议室、懂事长办公室、财务室、客房各一个区域的新风系统,员工办公室、前台作为一个区域布置, | 13 | 水处理系统 | 在客房处会考虑有茶水间,其中对于物业提供的水会进行水处理系统后使用。如果能检测水质量更好 | 14 | 环境控制系统 | 控制各房间的温度、湿度、CO2浓度、PM2.5浓度、O2浓度等,支持与智能中控系统联动控制 | 15 | 门窗管理系统 | 要求控制窗户的自动开与关,同时联动风力感应器、雨水感应器、玻璃破损感应器、环境控制系统功能,通过智能中控管理,实现自动开窗、关窗功能 | 16 | AV中控系统 | 要求控制灯光、窗帘、空调地暖、新风、背景音乐、监控、报警、可视对讲、视频切换、环境控制、门窗管理联动、影音系统、会议系统、舞台影响、老人看护等综合系统,实现简单化操作功能 | 17 | 影音系统 | 要求控制会议室达到9.1声道的影音标准,设置KTV标准卡拉OK系统,卷动幕布150寸,3D投影效果, | 18 | 会议系统 | 要求每排座位及主席台设有表决器、话筒等,便于学员发表讲话及互动, | 19 | 客控系统 | 要求一卡取电、断电,客房与前台互动,实现模拟叫车、打扫卫生、换床单等功能。可实现房客进房取电后出现‘某贵宾欢迎贵宾模式’,
字样显示在电视上,同时记住每位房客住过的生活状态(温度、湿度、光照度等) | 20 | 智能小家电 | 配置内容范围包括:智能扫地机、垃圾桶、小开、感应纸巾盒、智能电饭煲、智能电热水壶等等 | 21 | 节能灯具 | 要求室内根据光源类型设计主灯灯源、辅灯灯源,考虑光学环境,联动智能做相应光环境变化,详细布置需根据图纸设计 | 22 | 智能鱼缸 | 要求水恒温、水质保鲜,最好能读出水质状态、水可以通过智能系统进行自动循环排水及注水。 | 23 | 舞台音响 | 实现专用化的音箱效果,做到声、光、电的融合,具体请根据图纸设计 | 24 | 喷雾系统 | 可实现智能联动进行喷雾,实现生活环境的变化。具体控制参考图纸设计 | 25 | 太阳能系统 | 利用太阳能实现太阳能热水器、太阳能照明、太阳能辅助UPS备用电源,确保安保系统的供电,或者采用太阳能安防报警系统 | 26 | 老人看护系统 | 实现对老人的血压、血糖、血脂、体重等身体状态的检测,以及紧急事件的处理等监护,确保实现与老人实时互动 | 27 | 机房系统 | 实现机房设备的管理,要求配置机柜、理线架、配线辅材、UPS电源、路由器、交换机、防雷插座等系统 | 28 | 其它智能系统 | 其它智能家居相关的系统,如智能厨房等 |
临时收货地址:杭州市滨江区秋溢路228号江虹国际创意园2号楼402室 电话:18358186360 联系人:胡先生 微信号:43766885 QQ:43766885 电话:13757423623 联系人:孙先生 微信号:nbsuntree QQ:641701
| 免费出样设计咨询联络人 | 汪国武 | 18968192346 | 负责公司智能系统设计内容确认及施工设计图的落实 | |
关于智能工坊电子周刊: 本周刊是老树整理的关于网络及现实的智能家居类的微信订阅号,专为智能家居爱好者准备的普及类电子读物,以干货为主,可读性极强。 智能工坊:致力于成为智能产品与系统的专业服务品牌。并在积极筹建中国智能家居定制设计安装联盟。 智能工坊拥有基于线上线下社交平台以及遍布于全国各地的数百家线下智能工坊互动体验中心。 微信公众订阅号:cnzngf 或 智能工坊电子周刊 欢迎大家订阅及分享。 QQ群搜索“智能工坊”,加入各地工坊交流群。 扫一扫,关注《智能工坊电子周刊》
智能工坊--智能家居线上线下一体化服务平台 本电子周刊由杭州老树智坊公司负责日常维护 倾心打造智能家居界最优秀的普及类电子读物
|